情報更新日:2026年02月03日/広告有効期限:なし
表示閲覧回数(過去30日間):112
お急ぎの方はお電話からお気軽にどうぞ!
TEL 0287-36-5454(県北エリア)
TEL 028-651-3030(県央エリア)
営業時間 / 9:00〜18:00 定休日 / 毎週水曜日,第2または第3火曜日(大型連休月と2,3月除く)
>物件詳細情報
| 基本情報 | |
|---|---|
| 物件番号 | 10007806046 |
| 店舗形態 | 事務所, ロードサイド |
| オススメ業種 | 医療関係, 美容関係, 塾・学校・教育関係, 物販関係 |
| 物件名 | 緑一丁目なすの店舗 |
| 物件の状態 | 空き |
| 引越し時期 | 即 |
| 契約形態と期間 |
普通契約期間:3年間 |
| 所在地・交通 | |
|---|---|
| 所在地 | 栃木県那須塩原市緑1-8-62 |
| 交 通1 | 東北本線西那須野駅 徒歩35分 |
| 交 通2 | - |
| 賃料 | |
|---|---|
| 賃 料 | 450,000円(税込) |
| 敷 金 |
2ヶ月 |
| 礼 金 | 1ヶ月 |
| その他 | |
|---|---|
| 備考 | 居抜き物件のため設備はすべて現状となります。ライフライン、設備等の事前のチェックをお勧めします。 仲介手数料(賃料の1ヵ月分)、保証会社保証料(賃料計の1ヵ月分) 別途。 契約金には、翌月賃料も含まれます。火災(家財)保険は別途ご契約頂きます。 |
| 建物 | |
|---|---|
| 建物構造 | 鉄骨造 |
| 建物階建て |
地上1階 |
| 施工年月 | 2009(平成21)年 04月 |
| 募集物件の階数 | 地上 1階 |
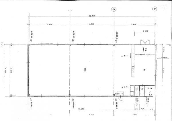
| 契約面積 | 198m2(59.90坪) |
| 専用使用面積 | 198m2(59.90坪) |
| 敷地面積 | 1,471.48m2(445.12坪) |
| 用途地域 | 指定無 |
| 設備 | |
|---|---|
| 水道 | 公営 |
| 下水道 | 公共下水 |
| ガス | LPG |
| エレベータ | 無 |
| エアコン | 有り/個別 |
| トイレ | 有/専用 |
| 給湯室 | 無 |
| キッチン | 有/専用 |
| ネット環境 | 無 |
| 床仕様 | CFシート |
| セキュリティ | 無 |
| 利用時間 | 24時間 |
| シャッター | 無 |
| 照明設備 | 有 |
| 内装業者指定 | 無 |
| 駐車場 | |
|---|---|
| 状 況 | 空有無料 |
| 空き台数 | 36台 |
| 取引情報 | |
|---|---|
| 取引態様 | 媒介 |
| 客付 | 可 |
この物件をチェックした人はこんな物件も見ています
- 飲食店居抜きです。近隣地も居酒屋及び飲食店が多いエリアです。相乗効果が見込めます。

栃木県那須塩原市下永田2-1044-39
88.03m2(26.63坪)
220,000円(税込)
- スーパーマーケット敷地内!来客用駐車場は自由に使用できます(従業員用は別途)。オープン日からの賃料発注です!

栃木県那須塩原市鍋掛-1087-1381
49.57m2(14.99坪)
99,000円(税込)
- 街中の路面店舗です。

栃木県那須塩原市末広町-64-62
41.25m2(12.48坪)
88,000円(税込)
- 黒磯駅徒歩圏内(約5分)。条例で、看板や外観改装の補助金が使える場合が有ります。

栃木県那須塩原市宮町-4-28
48.40m2(14.64坪)
40,700円(税込)
- 時間貸しのイベントスペースです。

栃木県大田原市浅香3-3578-290
126.68m2(38.32坪)
55,000円(税込)
今日チェックした物件
お急ぎの方はお電話からお気軽にどうぞ!
TEL 0287-36-5454(県北エリア)
TEL 028-651-3030(県央エリア)
営業時間 / 9:00〜18:00 定休日 / 毎週水曜日,第2または第3火曜日(大型連休月と2,3月除く)


0287-36-5454(県北エリア)


















0287-36-5454(県北エリア)