情報更新日:2025年12月02日/広告有効期限:なし
表示閲覧回数(過去30日間):216
お急ぎの方はお電話からお気軽にどうぞ!
TEL 0287-36-5454(県北エリア)
TEL 028-651-3030(県央エリア)
営業時間 / 9:00〜18:00 定休日 / 毎週水曜日,第2または第3火曜日(大型連休月と2,3月除く)
>物件詳細情報
| 基本情報 | |
|---|---|
| 物件番号 | 10007805919 |
| 店舗形態 | 店舗(飲食店可), 居抜店舗, 店舗, 事務所 |
| オススメ業種 | 軽飲食, 重飲食, サービス業 |
| 物件名 | ボルボナーゼ北草川(テナントA)(正面右) |
| 物件の状態 | 空き |
| 引越し時期 | 即 |
| 契約形態と期間 |
普通契約期間:3年間 |
| 所在地・交通 | |
|---|---|
| 所在地 | 栃木県さくら市北草川1-3-1 |
| 交 通1 | 東北本線氏家駅 徒歩21分 |
| 交 通2 | - |
| 賃料 | |
|---|---|
| 賃 料 | 110,000円(税込) |
| 敷 金 |
3ヶ月 |
| 精算方法 | 実費 |
| 礼 金 | 1ヶ月 |
| その他 | |
|---|---|
| 備考 | ・敷地内駐車場3台可能。 ・室内の什器備品に関しては残置物扱いとなるため、現状での引渡しとなります。 ・仲介手数料(賃料の1ヵ月分)、保証会社保証料(賃料計の1ヵ月分) 別途。 ・契約金には、翌月賃料も含まれます。火災保険は別途ご契約頂きます。 |
| 建物 | |
|---|---|
| 建物構造 | 鉄筋コンクリート造 |
| 建物階建て |
地上4階 |
| 施工年月 | 2002(平成14)年 02月 |
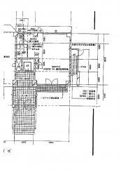
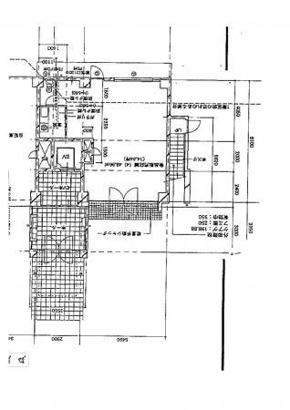
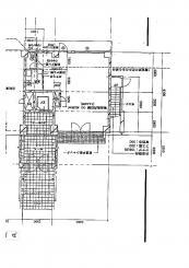
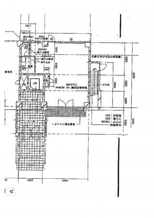
| 募集物件の階数 | 地上 1階 A号室 |
| 契約面積 | 49.05m2(14.84坪) |
| 専用使用面積 | 49.05m2(14.84坪) |
| 設備 | |
|---|---|
| 水道 | 公営 |
| 下水道 | 公共下水 |
| ガス | LPG |
| エレベータ | 無 |
| エアコン | 無 |
| トイレ | 有/専用 |
| 給湯室 | 有/専用 |
| キッチン | 有/専用 |
| ネット環境 | 有 |
| 床仕様 | OAフロア |
| 照明設備 | 有 |
| 駐車場 | |
|---|---|
| 状 況 | 空有無料 |
| 空き台数 | 3台 |
| 取引情報 | |
|---|---|
| 取引態様 | 専任 |
| 客付 | 可 |
この物件をチェックした人はこんな物件も見ています
- 飲食店居抜きです。近隣地も居酒屋及び飲食店が多いエリアです。相乗効果が見込めます。

栃木県那須塩原市下永田2-1044-39
88.03m2(26.63坪)
220,000円(税込)
- 大田原市役所の目の前にある事務所です。水道料込み。駐車場は1台分無料。追加の駐車場は1台分3,300円(税込)。

栃木県大田原市本町1-2714-7
38.88m2(11.76坪)
63,300円(税込)
- スーパーオータニ江曽島店様敷地内の旧カラオケ店舗。駐車場はオータニと共有で無料です。※現用途地域が一種住居の為、用途変更無いカラオケ店であれば使用できます。

栃木県宇都宮市江曽島町-1067-1
497.90m2(150.61坪)
550,000円(税込)
- 無料駐車場約35台分あり(内5台分は屋根付き)。30坪程度の屋根裏部屋あり。令和7年に屋根・外壁塗装および内部クロス張替。令和8年に業務用エアコン4台設置。

栃木県那須塩原市上大塚新田-18-1
198.72m2(60.11坪)
275,000円(税込)
- 無料駐車場5台分あり。接骨院跡。飲食店不可。

栃木県大田原市本町1-2695-4
133.75m2(40.46坪)
275,000円(税込)
今日チェックした物件
お急ぎの方はお電話からお気軽にどうぞ!
TEL 0287-36-5454(県北エリア)
TEL 028-651-3030(県央エリア)
営業時間 / 9:00〜18:00 定休日 / 毎週水曜日,第2または第3火曜日(大型連休月と2,3月除く)


0287-36-5454(県北エリア)


















0287-36-5454(県北エリア)